آشنایی با دیتیل سقف عرشه فولادی ، به عنوان یکی از پیشرفته ترین سیستم های سقفی در صنعت ساخت و ساز که ترکیبی از فناوری مدرن و اصول مهندسی است امری ضروری برای مهندسان به شمار می آید. این سیستم با استفاده از ورق های فولادی گالوانیزه و بتن مسلح، نه تنها سرعت و سهولت اجرای پروژه های ساختمانی را افزایش می دهد، بلکه مقاومت سازه را نیز به میزان قابل توجهی بهبود می بخشد. استفاده از این نوع سقف در پروژه های عمرانی به دلیل ویژگی هایی همچون کاهش وزن سازه، استحکام بالا و کاهش هزینه های اجرایی، به یک راه حل ایده آل برای سازندگان تبدیل شده است.
ابعاد و پوشش ورق های عرشه فولادی
یکی از موارد مهم دیتیل عرشه فولادی ، ابعاد و مشخصات ورق های آن است. این ورق ها براساس استاندارد های مشخص طراحی و تولید می شوند که ابعاد و پوشش آن ها از مهم ترین ویژگی های فنی محسوب می شود. در ادامه، جزئیات سقف عرشه فولادی مرتبط با ابعاد و پوشش این ورق ها بررسی شده است.

ابعاد ورق های عرشه فولادی
ورق های فولادی که در سقف عرشه فولادی مورد استفاده قرار می گیرند، باید دارای حداقل مقاومت مشخصه تسلیم mpa۲۳۰ باشند.
ابعاد ورق های عرشه فولادی به گونه ای طراحی می شود که نصب و اتصال آن ها در پروژه های ساختمانی به آسانی و با کمترین خطا انجام گیرد. از مهم ترین ویژگی های ابعادی این ورق ها می توان به موارد زیر اشاره کرد:
طول ورق ها:
طول هر ورق باید متناسب با نیازهای پروژه و شرایط طراحی انتخاب شود. در بیشتر پروژه ها، طول ورق ها بین ۲ تا ۱۲ متر است، اما در شرایط خاص ممکن است مقادیر متفاوتی مورد استفاده قرار گیرد.
عرض ورق ها:
عرض استاندارد این ورق ها معمولاً ۱ الی ۱.۲۵ متر است. رعایت دیتیل عرشه فولادی ، علاوه بر کاهش هدر رفت مواد، فرآیند نصب را تسهیل کرده و بازدهی را افزایش می دهد.
ضخامت ورق ها:
ضخامت ورق ها بسته به میزان بار وارده و شرایط سازه انتخاب می شود. این ضخامت به گونه ای طراحی می شود که هم استحکام کافی را تأمین کند و هم وزن کلی سازه را کاهش دهد.
گام پروفیل ها:
گام شیارها یا موج های ورق که معمولاً بین ۵۰ تا ۷۵ میلی متر است، نقش مهمی در افزایش سختی خمشی ورق و بهبود چسبندگی بتن به فولاد ایفا می کند.

اهمیت رعایت ابعاد و پوشش استاندارد به عنوان دیتیل عرشه فولادی
انتخاب دقیق ابعاد و پوشش مناسب برای ورق های عرشه فولادی، از عوامل کلیدی در تضمین کیفیت و عملکرد این سیستم است. طراحی ابعاد متناسب، فرآیند حمل و نقل و نصب را آسان تر کرده و از بروز مشکلات اجرایی جلوگیری می کند. همچنین، پوشش گالوانیزه، طول عمر سازه را افزایش داده و از مشکلاتی مانند زنگ زدگی، کاهش استحکام و افزایش هزینه های تعمیر و نگهداری جلوگیری می کند.
این الزامات، علاوه بر تأمین کارایی و ایمنی، در بهینه سازی هزینه ها و کاهش نیاز به تعمیرات در طول عمر مفید سازه نقش مهمی دارند. رعایت استاندارد های فنی در طراحی و تولید ورق ها، تضمین کننده عملکرد موفق این سیستم در پروژه های ساختمانی است.

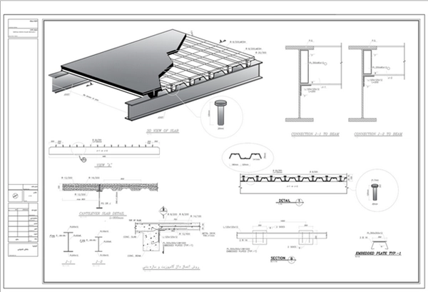
دیتیل سقف عرشه فولادی درخصوص بتن و گل میخ
بتن استفاده شده در این نوع سقف باید از مقاومت فشاری مطلوب برخوردار باشد و عیار آن بر اساس طراحی مشخص شود. طبق مبحث دهم مقررات ملی ساختمان حداقل ضخامت دال بتنی بالای ورق فولادی، ۵۰ میلی متر است.
برش گیر های گل میخ کلاهک دار از جنس فولاد بوده و قطر و طول آن ها بر اساس طراحی سازه و ضخامت ورق عرشه فولادی تعیین می شود. طبق مبحث دهم مقررات ملی ساختمان، دال بتنی باید توسط برش گیر های از نوع گل میخ با قطر حداکثر ۲۰ میلی متر به مقطع فولادی متصل شوند. پس از نصب، ارتفاع گل میخ ها که از بالای عرشه فولادی اندازه گیری می شود نباید از ۴۰ میلی متر و نصف ضخامت دال بتنی روی عرشه کوچک تر باشد. به عبارتی حداقل ارتفاع گل میخ بعد از نصب (از بالای ورق) ۴۰ میلی متر باشد. پوشش بتن روی گل میخ ها نباید از ۱۵ میلی متر کمتر باشد.
فاصله ستون ها در سقف عرشه فولادی
سقف عرشه فولادی جزو سقف های سبک و بسیار مقاوم است. می توان فاصله ستون ها در سقف عرشه فولادی را کمی بیشتر از سقف های کامپوزیت در نظر گرفت. طبق استاندارد ملی ساختمان، یکی از جزئیات سقف عرشه فولادی حداکثر فاصله ستون ها است که ۱۲ متر در نظر گرفته شده و این مقادیر در پلان تیر ریزی سقف عرشه فولادی مشخص می شود.

حداکثر دهانه سقف عرشه فولادی
در اجرای عرشه فولادی یا متال دک از ورق های گالوانیزه برای پوشش دال استفاده می شود. همچنین، جهت درگیری و عملکرد یکپارچه ورق و بتن پوششی دال، گل میخ ها به کار برده می شوند. تعیین حداکثر دهانه سقف عرشه فولادی به عنوان یکی از جزئیات سقف عرشه فولادی حائز اهمیت است.
به طور معمول عرض ورق های گالوانیزه بین ۱۰۰ تا ۱۲۵ سانتی متر و طول آن ها با توجه به نقشه اجرایی و سفارش مشتری، تا ۱۲ متر قابل سفارش است. لذا حداکثر دهانه سقف عرشه فولادی به حدود ۱۲ متر می رسد.

فاصله ی تیرهای فرعی در سقف عرشه فولادی
از مهم ترین جزئیات سقف عرشه فولادی ، تیر فرعی است. علت این اهمیت این است که تمام بارهای زنده و مرده و بارهای حاصل از مصالح، به کمک تیرهای فرعی به تیرهای اصلی و به ستون ها و فوندانسیون منتقل می شود. باید توجه داشت فاصله تیر های فرعی که در پلان تیر ریزی سقف عرشه فولادی مشخص می گردد از ۲۵۰ سانتی متر بیشتر نشود؛ چرا که سبب لرزش سقف های عرشه فولادی می شود.
رعایت استانداردها در دیتیل سقف عرشه فولادی
اجرای دیتیل سقف عرشه فولادی باید بر اساس ضوابط مبحث ۱۰ مقررات ملی ساختمان انجام شود. دیتیل عرشه فولادی شامل موارد زیر می باشد.
- حداقل ارتفاع گام ورق از ۶ سانتی متر بزرگتر باشد.
- حداقل ارتفاع گلمیخ بعد از نصب که از بالای ورق ذوزنقه ای اندازه گیری می شود نباید کمتر از ۴۰ میلیمتر باشد.
- ضخامت دال بتنی در بالای کنگره ورق ذوزنقه ای نباید از ۵۰ میلیمتر کمتر باشد.
- پوشش بتن روی گلمیخ نباید کمتر از ۱۳ میلیمتر باشد.
- فواصل گلمیخ برشگیر در امتداد تکیه گاهی نباید از ۸۰۰ میلیمتر یا ۸ برابر ضخامت دال، هر کدام که کمتر است، تجاوز نماید.
- حداقل عرض نشیمن ورق های عرشه روی تیرهای اصلی و تیرهای لبه برابر با نصف بال تیرآهن است، این مقدار نباید کمتر از ۵۰ میلی متر باشد.
- وصله ورق های عرشه صرفاً بر روی تیرهای اصلی مجاز بوده و در این حالت می بایست دو عرشه وصله شونده به طولی حداقل برابر ۵۰ میلیمتر بر روی تیر اصلی با یکدیگر همپوشانی داشته باشند.
- برای مقابله با بلند شدن دال، ورق ذوزنقه ای فولادی باید به تمام تیرهای فرعی که به صورت مقطع مختلط طراحی می شوند، در فواصل کمتر از ۴۰۰ میلیمتر مهار شوند. این مهارها می توانند گلمیخ های برشگیر، ترکیبی از گلمیخ ها و جوش نقطه ای و یا هر وسیله طرح شده توسط طراح در دیتیل سقف عرشه فولادی باشد.
- کنگره های ورق های ذوزنقه ای را در روی تیر تکیه گاهی می توان به صورت طولی از هم جدا کرد تا تشکیل یک ماهیچه بتنی در روی بال تیر بدهند.
برای مطالعه بیشتر:
دیدگاهتان را بنویسید